
| 防爆阔杆/全通径 | |
| 适用温度范围 | -20 to120℃ |
| 使用压力 | ≤1.6MPa |
| 适用介质 | 水、气、油 |
| 设计制造 | GB/T-12224/ANSIB16.34 |
| 螺纹标准 | BSPT/BSP/NPT/DIN/JIS/RC/G |
| 检查与测试 | GB/T-13927/API598 |
| 气压测试 | 0.8MPa |
材料列表
| 部件名称 | 材质 | |
| 阀体 | CF8M | CF8 |
| 阀盖 | CF8M | CF8 |
| 球 | SS316 | SS304 |
| 阀杆 | SS316 | SS304 |
| 球密封 | PTFE | PTFE |
| 杆密封 | PTFE | PTFE |
| 中头垫 | PTFE | PTFE |
| 填料压套 | SS202 | SS202 |
| 手柄 | SS202 | SS202 |
| 锁片 | SS202 | SS202 |
| 胶套 | SS304 | SS304 |
| 螺母 | SS202 | SS202 |
| 螺帽 | PLASTIC | PLASTIC |
| 弹垫 | SS202 | SS202 |
| 螺帽 | SS202 | SS202 |
| 弹垫 | SS202 | SS202 |
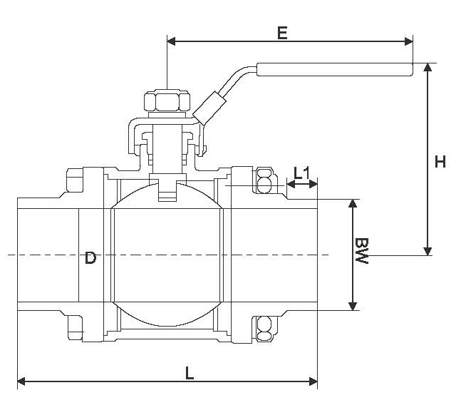
外形尺寸
| DN | SIZE | L | L1 | E | H | D | BW |
| 15 | 1/2" | 69 | 20.0 | 122.9 | 58.0 | 10.2 | 12.7 |
| 20 | 3/4" | 80 | 20.0 | 122.9 | 61.0 | 15.8 | 19.1 |
| 25 | 1" | 88 | 20.0 | 144.9 | 68.0 | 22.1 | 25.4 |
| 40 | 1-1/2" | 101 | 20.0 | 188.9 | 84.5 | 34.8 | 38.2 |
| 50 | 2" | 111 | 20.0 | 188.9 | 93.2 | 47.5 | 50.8 |
| 65 | 2-1/2" | 138 | 20.0 | 255.3 | 131.8 | 60.2 | 63.4 |
| 80 | 3" | 178.8 | 20.0 | 260.8 | 140.0 | 72.9 | 76.2 |
| 100 | 4" | 210.5 | 20.0 | 322.2 | 173.6 | 97.4 | 101.6 |












浙公网安备 33030302000874号 备案号:浙ICP备20010211号 设计& 维护:乔宇科技